Осушители воздуха для дробеструйных и пескоструйных работ. Профессиональная сушка кораблей и металлоконструкций
Современная альтернатива осушителям Munkebo ZAM-5000, ZAM-8000 и ZAM-12000
Качество пескоструйной и дробеструйной обработки напрямую зависит от влажности воздуха. Избыточная влага приводит к мгновенной коррозии металла, ухудшению адгезии покрытий и срыву сроков сдачи объекта.
Промышленные осушители RLZA ICE — это мощные установки, специально разработанные для работы на крупных объектах: судостроение и судоремонт, резервуары, ангары, мостовые конструкции, цеха металлообработки и крупные производственные площадки.

Максимальная производительность для ответственных задач
В линейке представлены три модели:
- RLZA-82R ICE — 6 000 м³/ч / 27 кг/ч
- RLZA-101R ICE — 9 000 м³/ч / 34 кг/ч
- RLZA-102R ICE — 12 000 м³/ч / 54 кг/ч

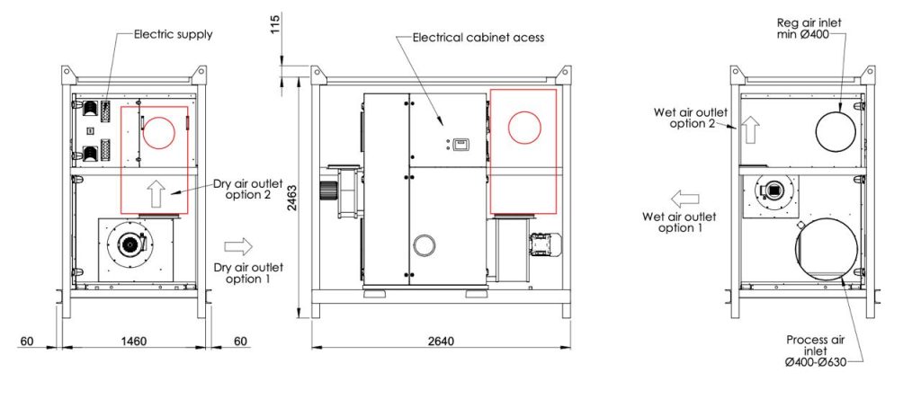
Это установки с усиленными вентиляторами ICE, способными продавить сеть воздуховодов более 50 метров и обеспечить давление сухого воздуха до 1000 Па.
Такие характеристики позволяют эффективно работать даже на сложных объектах — внутри корпусов судов, трюмов, резервуаров и больших производственных помещений.
Гибкость распределения воздушных потоков
Осушители можно адаптировать под конкретный объект:
- Изготовление специальной сварной рамы для удобной транспортировки и подъёма краном
- Возможность самостоятельного изготовления рамы заказчиком или поставка готового решения
- Производство переходников для разделения потока воздуха


Например:
RLZA-101R ICE подаёт 9 000 м³/ч сухого воздуха. При установке тройника можно распределить поток на три линии по 3 000 м³/ч — для одновременной работы в нескольких зонах.
Это особенно важно при параллельной обработке разных отсеков судна или отдельных участков металлоконструкций.
Надёжность в агрессивной среде
Пескоструйные и дробеструйные работы — это пыль, абразив и сложные климатические условия.
Осушители RLZA ICE рассчитаны на такую эксплуатацию:

- Корпус с покрытием Aluzink, устойчивый к коррозии
- Большие воздухозаборники с решётками и фильтрами
- Удобный доступ к ключевым узлам для обслуживания
- Работа как в помещении, так и под открытым небом
Технология, которой доверяют профессионалы
В основе установок — силикагелевый ротор DST Seibu Giken (Япония) с гарантией 3 года.
Преимущества ротора:
- Возможность длительного хранения при высокой влажности
- Моющийся — пыль и липкая грязь легко удаляются водой и моющими средствами
- Стабильные характеристики осушения в тяжёлых условиях
Сектор Recusorb обеспечивает снижение энергопотребления и повышает общую эффективность системы.
Интеллектуальное управление и экономия энергии
Осушители оснащены:
- Плавной регулировкой производительности (кг/ч)
- Работой строго на необходимой мощности — без перерасхода электроэнергии
- PLC-контроллером с сенсорным дисплеем
- Полным контролем всех рабочих параметров
Вы получаете точную настройку под конкретные климатические условия и стабильную работу без простоев.
Почему это выгодно для вашего объекта
- Исключение повторной коррозии после очистки
- Соблюдение требований к влажности перед нанесением покрытий
- Сокращение сроков выполнения работ
- Минимизация брака и переделок
- Работа на больших объёмах без потери производительности
Осушители RLZA ICE — это решение для профессионалов, которым важны стабильность, мощность и промышленная надёжность.
Подберём установку под ваш объект

Специалисты компании помогут рассчитать необходимую производительность, схему воздухораспределения и комплектацию под конкретные задачи: сушка кораблей, резервуаров, цехов или локальных зон обработки.
Свяжитесь с нами — и мы предложим эффективное решение для вашего проекта.